The Grange, Abbots Langley

For Sale £130,000

1 1 1

Positioned right on Abbots Langley High Street, this beautifully maintained first-floor retirement apartment offers a calm, secure, and sociable lifestyle for those aged 55 and above.

The home provides a thoughtful balance of comfort and practicality, with bright interiors and well-planned spaces throughout.

Inside, you’ll find a spacious lounge/dining room, a neatly arranged kitchen, a wide hallway with excellent built-in storage, a comfortable double bedroom, and a well-kept shower room.

The development itself includes a welcoming communal entrance, lift access, a guest suite for visiting family or friends, a helpful on-site warden, and a convenient laundry room.

Residents enjoy a strong sense of community, with noticeboards full of outings, activities and social events.

The communal gardens offer a peaceful outdoor space, while the High Street’s shops, amenities and green spaces are only steps away.

This is a wonderful opportunity to join a friendly, well-run development in a superb village location.

Enquiries and viewings are warmly encouraged.

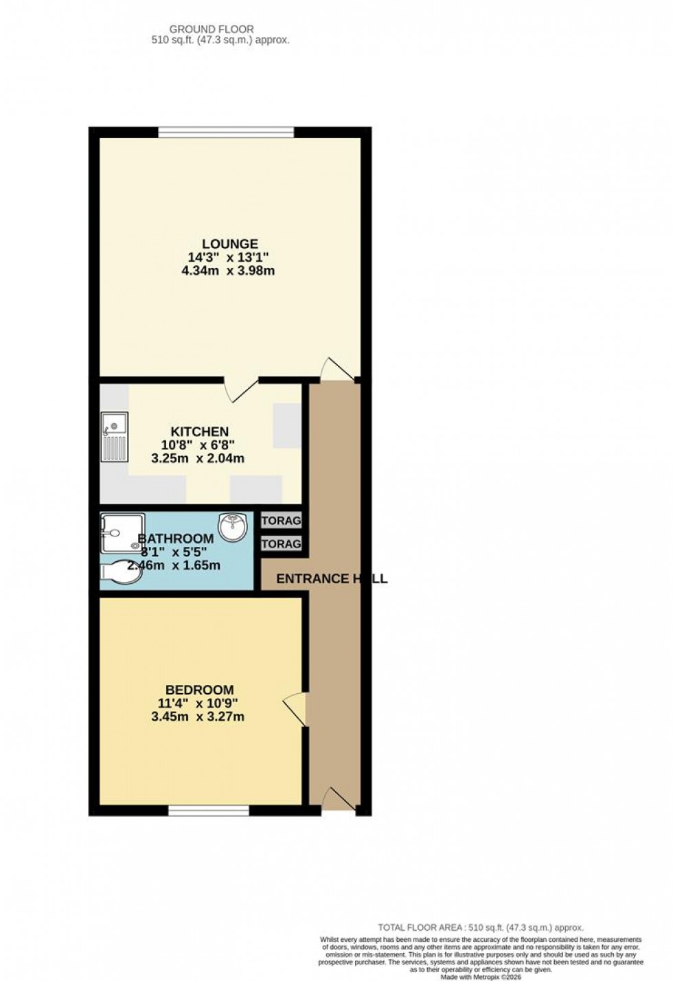
Entrance Hall You step into a surprisingly spacious hallway that immediately sets the tone for the apartment.

There’s excellent built-in storage, ideal for coats, shoes, cleaning items and everyday essentials.

The hall connects smoothly to every room, making the layout easy to navigate.

Lounge / Dining Room – approx.

14'3" x 13'1" A bright, inviting living space with plenty of room for both a comfortable seating area and a dining table.

The proportions make it feel open and airy with front aspect, Kitchen – approx.

10'8" x 6'8" Just off the lounge, the kitchen is well-designed with good countertop space and practical storage.

It’s equipped for everyday cooking, with room for appliances and everything arranged for easy use.

Bedroom – approx.

11'4" x 10'9" A generous double bedroom with aspect over the gardens with plenty of space for wardrobes, bedside tables, and additional furniture.

Shower Room – approx.

8'1" x 5'5" Well maintained and neatly presented, the shower room includes a walk-in shower, WC, and basin.

Communal Areas - Guest bedroom available for visitors - Lift serving all floors - Laundry room for residents - On-site warden offering support and reassurance - Communal gardens providing a calm outdoor retreat - Residents’ parking

Floorplan for The Grange, Abbots Langley
EPC Graph for The Grange, Abbots Langley

Book a valuation

Find out how much your property is worth