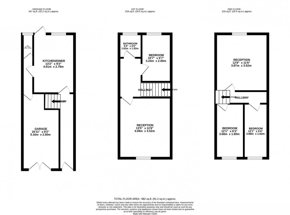
FULLY REFURBISHED FOUR BEDROOM TOWNHOUSE MINUTES FROM WATFORD JUNCTION STATION WITH DRIVEWAY PARKING AND A GARAGE - AVAILABLE END OF JANUARY 2026 This beautifully refurbished townhouse offers modern, stylish living across three spacious floors. Newly renovated from top to bottom, the property...