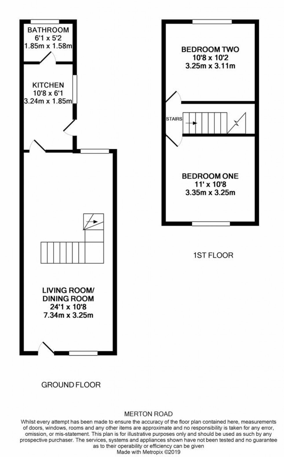
0.3 MILES TO WATFORD GIRLS GRAMMAR SCHOOL - 0.3 MILES TO WATFORD GENERAL HOSPITAL - 0.3 TO WATFORD INTU SHOPPING CENTRE - SHORT WALK TO CASSIOBURY PARK. This beautifully presented two bedroom mid terrace property is available offers an open plan living/dining area with good quality floor...