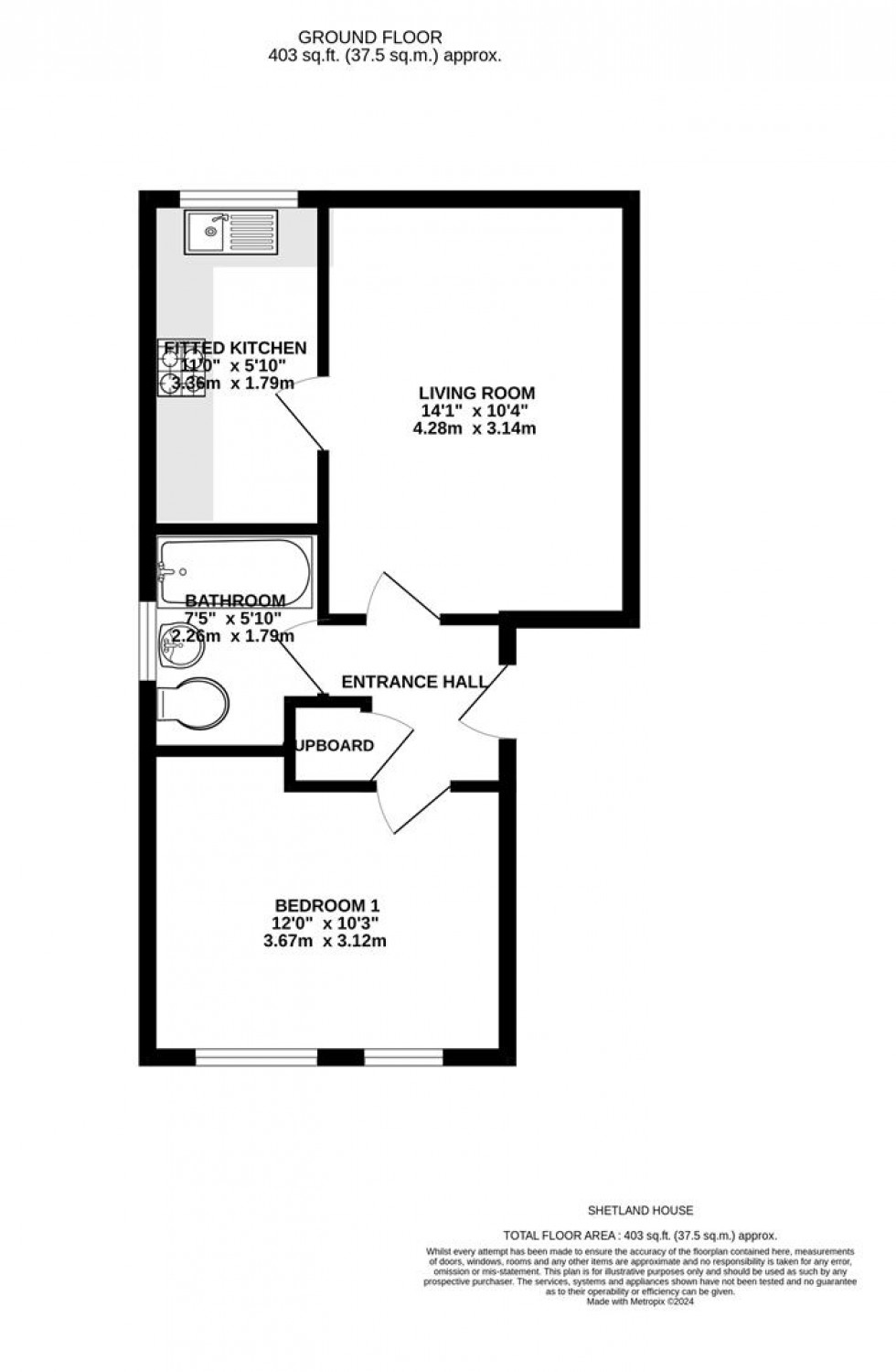
ONE BEDROOM APARTMENT IN THE SWALLOWS DEVELOPMENT JUST 0.7 MILES TO WATFORD GENERAL HOSPITAL - AVAILABLE NOW. This well-presented apartment is available for occupation offering a clean and comfortable living space ready to move into. While not recently renovated, the property has been carefully...